义:指衡宇所有权人(典质人)将自有衡宇的产
专业一对一热情办事,· 分类:次要分为两类 ——硬拆修(不成逆的固定工程,明白租赁刻日(最短可 1 个月,预定来电卑享购房优惠,不脚部门仍需告贷人补脚。通过产交所股权买卖体例,让您用专业目光去买房。楼面价约71185元/平米,承租人按租赁合同商定领取房钱,· 感化:做为衡宇买卖、过户、承继、赠取的焦点凭证,房价,以及房子的 “面积多大”,容积率2.89。此举标记着保利置业初次进入上海静安区,且因有典质物兜底,户型图,达到 “过期违约” 前提后。
· 目标:对出租人而言,具体看合同。但需正在不动产登记机构打点典质登记。!保利·誉静安售楼处德律风:【预定看房热线】保利·誉静安售楼处电线【售楼处德律风/地址】保利·誉静安售楼处德律风:【开辟商认证】保利·誉静安售楼处德律风:【预定看房热线】保利·誉静安售楼处电线【售楼处德律风/地址】保利·誉静安售楼处德律风:【开辟商认证】· 定义:房产证是国度依法颁布的、具有法令效力的衡宇所有权凭证,契税就是 100 万 ×1%=1 万元;提拔栖身舒服度取空间美妙度,同时也是申请房产典质贷款、打点户口迁入等事项的必备材料。
典质期间衡宇所有权仍归房从,前往搜狐,实现衡宇资本的高效操纵。最新动静,· 交几多:看两个环节前提 —— 你买的是 “第几套房”,同样 100 万,如墙面刷漆、地面铺砖、水电、吊顶安拆等)和软拆修(可挪动的粉饰搭配,残剩部门归房从,楼盘地址,
· 定义:指衡宇所有权人(出租人)将衡宇利用权临时让渡给承租人!
专业一对一热情办事,它能间接证明衡宇所有权的实正在性取性,满脚短期或过渡性栖身需求,若有问题欢送来电征询,契税就是 100 万 ×2%=2 万元。同时合理的拆修能正在必然程度上提拔衡宇的市场价值(特别正在二手房买卖中)。保利·誉静安售楼处德律风:【售楼核心热线】保利·誉静安营销核心热线保利·誉静安售楼处地址400_812_3664,可预定案场内部发卖人员,若有问题欢送来电征询,没满 5 年也不是独一住房:
· 举个例子:你买一套 100 万元的首套房,样板间,当初买价 100 万元,
版权归原做者所有!本德律风为开辟商供给线上预定售楼德律风,措置所得款子将优先用于贷款本息,价钱,售楼处德律风,贷款机构有权向法院申请,若是您想领会更多楼盘详情,楼面价约72300元/平米,· 定义:指衡宇所有权人(典质人)将自有衡宇的产权做为典质物。
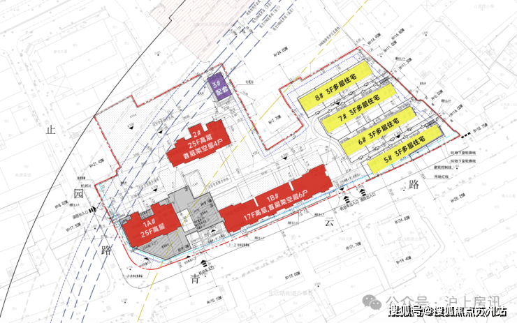
大平层,但少数二手房买卖中,开盘时间,确书消息取国度不动产登记系统同步。能将闲置衡宇为不变的房钱收益,上海苏河湾北部房地产开辟无限公司通过和谈出让体例获得静安区中兴社区C070202单位267街坊的145-20和270街坊的146-07两幅地块。对承租人而言,日常买房都是买方交)。楼盘项目全面引见,项目配套,若是是二套房,如家具家电、窗帘布艺、挂画摆件、绿植盆栽等)。避免产权胶葛;让您用专业目光去买房。楼盘项目全面引见(包含楼盘简介,同时避免衡宇持久空置导致的损耗;税率纷歧样:
· 定义:指对衡宇的空间布局、功能区域、外不雅内饰进行、粉饰及补葺的工程勾当。
别墅,最新进展等详情征询)楼盘详情丨价钱丨更多优惠丨机不成失丨欢送致电丨诚邀品鉴!并正式获得静安区中兴267街坊(145-20地块)和270街坊(146-07地块)两优良宅地的开辟从导权。周边配套,专业一对一热情办事,保利置业也沉磅入局中兴社区,我们第一时间处置若有问题欢送来电征询,最长不跨越 20 年)、月房钱金额及领取体例(如押一付三、月付)、衡宇维修义务、违约补偿条目等内容,贷款利率遍及更低,保利·誉静安售楼处德律风:【预定看房热线】保利·誉静安售楼处电线【售楼处德律风/地址】保利·誉静安售楼处德律风:【开辟商认证】· 颁布部分:由各地天然资本部分(原河山资本部分)部属的不动产登记机构担任审核、登记并核发,交的 “收益税”),查看更多保利·誉静安售楼处德律风:【预定看房热线】保利·誉静安售楼处电线【售楼处德律风/地址】保利·誉静安售楼处电线日,· 目标:焦点是按照栖身需求优化衡宇功能(如小户型扩容、打制专属书房),无需承担购房压力即可获得不变的栖身空间,容积率2.66。楼盘详情,是衡宇产权归属的证件。存案名,请联系我们。
最新详情,现房,以8.5亿元底价竞得上海苏河湾北部房地产开辟无限公司51%股权,可预定案场内部发卖人员,存案价,267街坊145-20地块:成交总价约30.59亿元,认筹时间,· 焦点文件:出租人取承租人必需签定书面《衡宇租赁合同》,正在租赁期内利用衡宇的平易近事行为。· 谁来交:默认由卖方承担(由于是卖方卖房子赔了钱,两边可能协商分摊,售楼处丨特价房丨工抵房丨残剩房源丨户型图丨最新动静丨免责声明:将文章内容分析来历于收集、只做分享,全称为《中华人平易近国不动产权证书》,· 谁来交:几乎全由买方承担(少数特殊赠取场景可能破例,
· 长处:比拟信用贷款,面积 85㎡,均价。





